Тироль 9
| Общая площадь | 124.4 м² |
| Размер дома | 9x9 м |
| Этажность | 2 эт |
| Спален | 4 |
| Санузлов | 2 |
| Утепление | 150мм |
| Срок возведения | 2 мес* |
- Комплектация
- Фундамент
|
Комплектация каркасного дома (можно вносить изменения по вашим пожеланиям) |
Внешний контур | Теплый контур | ЗИМА |
|---|---|---|---|
| Цена сейчас | 3 560 050 | 4 381 600 | 5 477 000 |
| Цена в ипотеку с эскроу-счетом | 3 916 055 | 4 819 760 | 6 024 700 |
| Фундамент
в подарок!
|
|||
| Забивные железобетонные сваи 150х150х3000 | |||
| Металлический оголовок, 250*250мм на каждую сваю | |||
| Гидроизоляция между сваей и обвязкой - рубероид | |||
| Цокольное перекрытие | |||
| Нижняя обвязка - Брус 150х150мм | |||
| Лаги пола - доска 50х200мм (камерной сушки) | |||
| Утепление - 200мм (минерало-ватный утеплитель) | |||
| Финишное покрытие - фанера 21мм | |||
| Несущие стены | |||
| Каркас внешних стен - 35х140мм камерной сушки, с шагом 580мм | |||
| Утепление плитное - 150мм (минерало-ватный утеплитель) | |||
| Внешняя отделка - Имитация бруса с поднятым ворсом. Крепление на саморезы | |||
| Внутренняя отделка - Имитация бруса. Крепление на саморезы | |||
| Внутренние перегородки | |||
| Каркасные 35х90мм / 35х140мм камерной сушки (по проекту) | |||
| Утепление - 100мм / 150мм* минерало-ватный утеплитель (*по проекту) | |||
| Внутренняя отделка - Имитация бруса (стены). Крепление на саморезы | |||
| Высоты | |||
| Высота 1-го этажа - 2,5м | |||
| Высота 2-го этажа - 2,5м | |||
| Кровля | |||
| Стропило 45х190мм камерной сушки | |||
| Утепление - 200мм (минерало-ватный утеплитель) | |||
| Обрешетка - 20х90мм | |||
| Контр-обрешетка - 40х40мм по ветрогидроизоляции | |||
| МЕТАЛЛОЧЕРЕПИЦА 0.5мм (цвет на выбор)
в подарок!
|
|||
| Лестница чердачная DÖCKE / FACRO (при наличии ХЧП)*** |
|||
| Пленки | |||
| ИЗОСПАН AQ PROFF / KNAUF Extra (или аналоги) гидро-ветрозащитная паропроницаемая усиленная мембрана | |||
| ИЗОСПАН RS (или аналоги) / KNAUF Extra армированная паро-гидроизоляция | |||
| Проклейка пленок скотчем | |||
| Ревизионный люк на чердак | |||
| Окна
в подарок!
|
|||
| Оконные конструкции ПВХ (Rehau/Veka) | |||
| 2-х камерный стеклопакет (3 стекла)** | |||
| Цвет – белый | |||
| Установка водоотливов под окнами | |||
| Двери | |||
| Входная одностворчатая ПВХ с двухкамерным стеклопакетом | |||
| Межэтажная лестница | |||
| Двухмаршевая с точеными балясинами | |||
| Перила | |||
| Ступени готовые | |||
| Оплата | |||
Поэтапная:
|
|||
| Гарантия | |||
| 15 лет* (полное атисептирование каркаса) | |||
| Технический надзор | |||
| на протяжении всей стройки | |||
| Сборка и доставка | |||
| Сборка домокомплекта на участке | |||
| Доставка материала | |||
| Разгрузка материала | |||
| Бытовка для проживания рабочих | |||
| Биотуалет для рабочих | |||
| Провекрка дома АэроОкном | |||
| * обязательным условием для получения гарантии 15 лет - оплата
полного атисептирования каркаса **количество камер стеклопакета, зависит от геометрии и параметров изделий ПВХ ***холодное чердачное помещение |
|||
Двухэтажный коттедж от компании «Канадская изба» возводится в течение 2 месяцев. Строительство проекта «Тироль 9» выполняется по каркасно-щитовой технологии, совмещающей легкость и надежность.
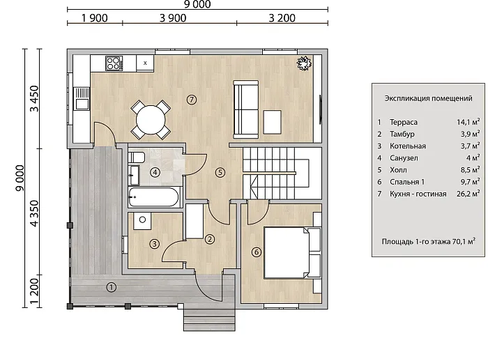
Вид и планировка
Каркасный дом размерами 9х9 полезной площадью 124,4 м², на 2 этаже расположена жилая мансарда с выходом на балкон. Лестница ведет в холл 1 этажа. Тамбур удобно отделяет санузел и котельную от жилых помещений. Стены из усиленного каркаса с утеплением, внутри и снаружи отделка из деревянной евровагонки. Проекты деревянных домов, например дачные дома из бруса 6х7 площади также могут быть просторными и уютными при должном утеплении.
Под двускатной асимметричной кровлей из оцинкованного гофролиста расположена летняя терраса 14,1 м2 с легким ограждением из деревянных перил. Планировка из просторной кухни-гостиной в 26,2 м2 и 4 спален позволяет комфортно разместиться большой семье.
Почему стоит заказать у нас
Компания гарантирует ответственный подход к выполнению задач. Технический надзор на всех этапах работ обеспечивает качество стройматериалов и выполненных работ. Заказчик получает дом под ключ, в который можно сразу въезжать. Преимущества компании:
- цены ниже средних по рынку;
- возможность оплаты поэтапно;
- собственная технология возведения стен.
В проект дома по желанию заказчика могут вноситься корректировки. Для обсуждения деталей оставьте заявку в форме обратной связи.














