Таберно
| Общая площадь | 128 м² |
| Размер дома | 9x11 м |
| Этажность | 2 эт |
| Спален | 1 |
| Санузлов | 1 |
| Утепление | 150мм |
| Срок возведения | 2 мес* |
- Комплектация
- Фундамент
|
Комплектация каркасного дома (можно вносить изменения по вашим пожеланиям) |
Внешний контур | Теплый контур | ЗИМА |
|---|---|---|---|
| Цена сейчас | 2 834 000 | 3 313 600 | 4 360 000 |
| Цена в ипотеку с эскроу-счетом | 3 117 400 | 3 644 960 | 4 796 000 |
| Фундамент
в подарок!
|
|||
| Забивные железобетонные сваи 150х150х3000 | |||
| Металлический оголовок, 250*250мм на каждую сваю | |||
| Гидроизоляция между сваей и обвязкой - рубероид | |||
| Цокольное перекрытие | |||
| Нижняя обвязка - Брус 150х150мм | |||
| Лаги пола - доска 50х200мм (камерной сушки) | |||
| Утепление - 200мм (минерало-ватный утеплитель) | |||
| Финишное покрытие - фанера 21мм | |||
| Несущие стены | |||
| Каркас внешних стен - 35х140мм камерной сушки, с шагом 580мм | |||
| Утепление плитное - 150мм (минерало-ватный утеплитель) | |||
| Внешняя отделка - имитация бруса | |||
| Внутренняя отделка - имитация бруса | |||
| Внутренние перегородки | |||
| Каркасные 35х90мм / 35х140мм камерной сушки (по проекту) | |||
| Утепление - 100мм / 150мм* минерало-ватный утеплитель (*по проекту) | |||
| Внутренняя отделка - имитация бруса (стены) | |||
| Высоты | |||
| Высота 1-го этажа - 2,5м | |||
| Высота 2-го этажа - 2,5м | |||
| Кровля | |||
| Стропило 45х190мм камерной сушки | |||
| Утепление - 200мм (минерало-ватный утеплитель) | |||
| Обрешетка - 20х90мм | |||
| Контр-обрешетка - 40х40мм по ветрогидроизоляции | |||
| МЕТАЛЛОЧЕРЕПИЦА 0.5мм (цвет на выбор)
в подарок!
|
|||
| Лестница чердачная DÖCKE / FACRO (при наличии ХЧП)*** |
|||
| Пленки | |||
| ИЗОСПАН AQ PROFF / KNAUF Extra (или аналоги) гидро-ветрозащитная паропроницаемая усиленная мембрана | |||
| ИЗОСПАН RS (или аналоги) / KNAUF Extra армированная паро-гидроизоляция | |||
| Проклейка пленок скотчем | |||
| Ревизионный люк на чердак | |||
| Окна
в подарок!
|
|||
| Оконные конструкции ПВХ (Rehau/Veka) | |||
| 2-х камерный стеклопакет (3 стекла)** | |||
| Цвет – белый | |||
| Установка водоотливов под окнами | |||
| Двери | |||
| Входная одностворчатая ПВХ с двухкамерным стеклопакетом | |||
| Межэтажная лестница | |||
| Двухмаршевая с точеными балясинами | |||
| Перила | |||
| Ступени готовые | |||
| Оплата | |||
Поэтапная:
|
|||
| Гарантия | |||
| 15 лет* (полное атисептирование каркаса) | |||
| Технический надзор | |||
| на протяжении всей стройки | |||
| Сборка и доставка | |||
| Сборка домокомплекта на участке | |||
| Доставка материала 100 км от МКАД | |||
| Разгрузка материала | |||
| Бытовка для проживания рабочих | |||
| Биотуалет для рабочих | |||
| Провекрка дома АэроОкном | |||
| * обязательным условием для получения гарантии 15 лет - оплата
полного атисептирования каркаса **количество камер стеклопакета, зависит от геометрии и параметров изделий ПВХ ***холодное чердачное помещение |
|||
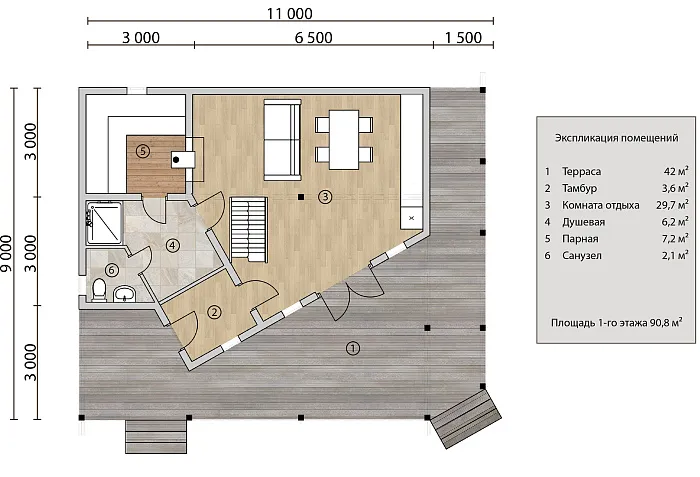
Уютное бунгало «Таберно» выполнено в традиционном финском стиле. Дом подойдет для большой семьи. Изюминка проекта – асимметричная форма с террасой под общей крышей для просторной зоны отдыха.
Экстерьер и внутридомовая планировка
Дом размещен на площадке 9*11 м. Благодаря необычной форме здание с трех сторон окружает терраса площадью 42 м². Общая двускатная крыша по периметру поддерживается опорами из бруса. Проекты дачных домов из бруса 6х7 площади.
Центральный вход ведет в просторную комнату отдыха. Стеклянные двери гармонично вписываются в оконную группу. Они придают помещению легкость и пропускают много естественного света. Второй вход через тамбур рассчитан на прохладное время года.
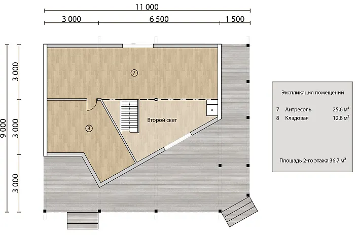
Основную часть второго этажа занимает комната-антресоль для спальной зоны. По соседству – вместительная кладовая, где можно организовать гардеробную или уединенный кабинет. Из гостиной на второй этаж ведет лестница.
Идеальный деревянный дом за 2 месяца
Мы предлагаем продуманную планировку дома из натурального дерева для сезонного и круглогодичного проживания. Вы получаете:
- готовое решение «под ключ»;
- авторский дизайн;
- современные экологические материалы;
- индивидуальный подбор отделки.
Построим ваш дом с соблюдением качества и технических норм. Вручим не только ключи, но и официальную гарантию.












