Подольск
| Общая площадь | 127 м² |
| Размер дома | 8x9 м |
| Этажность | 2 эт |
| Спален | 2 |
| Санузлов | 1 |
| Утепление | 150мм |
| Срок возведения | 2 мес* |
- Комплектация
- Фундамент
|
Комплектация каркасного дома (можно вносить изменения по вашим пожеланиям) |
Внешний контур | Теплый контур | ЗИМА |
|---|---|---|---|
| Цена сейчас | 2 752 100 | 3 217 840 | 4 234 000 |
| Цена в ипотеку с эскроу-счетом | 3 164 915 | 3 700 516 | 4 869 100 |
| Фундамент
в подарок!
|
|||
| Забивные железобетонные сваи 150х150х3000 | |||
| Металлический оголовок, 250*250мм на каждую сваю | |||
| Гидроизоляция между сваей и обвязкой - рубероид | |||
| Цокольное перекрытие | |||
| Нижняя обвязка - Брус 150х150мм | |||
| Лаги пола - доска 50х200мм (камерной сушки) | |||
| Утепление - 200мм (минерало-ватный утеплитель) | |||
| Финишное покрытие - фанера 21мм | |||
| Несущие стены | |||
| Каркас внешних стен - 35х140мм камерной сушки, с шагом 580мм | |||
| Утепление плитное - 150мм (минерало-ватный утеплитель) | |||
| Внешняя отделка - имитация бруса | |||
| Внутренняя отделка - имитация бруса | |||
| Внутренние перегородки | |||
| Каркасные 35х90мм / 35х140мм камерной сушки (по проекту) | |||
| Утепление - 100мм / 150мм* минерало-ватный утеплитель (*по проекту) | |||
| Внутренняя отделка - имитация бруса (стены) | |||
| Высоты | |||
| Высота 1-го этажа - 2,5м | |||
| Высота 2-го этажа - 2,5м | |||
| Кровля | |||
| Стропило 45х190мм камерной сушки | |||
| Утепление - 200мм (минерало-ватный утеплитель) | |||
| Обрешетка - 20х90мм | |||
| Контр-обрешетка - 40х40мм по ветрогидроизоляции | |||
| МЕТАЛЛОЧЕРЕПИЦА 0.5мм (цвет на выбор)
в подарок!
|
|||
| Лестница чердачная DÖCKE / FACRO (при наличии ХЧП)*** |
|||
| Пленки | |||
| ИЗОСПАН AQ PROFF / KNAUF Extra (или аналоги) гидро-ветрозащитная паропроницаемая усиленная мембрана | |||
| ИЗОСПАН RS (или аналоги) / KNAUF Extra армированная паро-гидроизоляция | |||
| Проклейка пленок скотчем | |||
| Ревизионный люк на чердак | |||
| Окна
в подарок!
|
|||
| Оконные конструкции ПВХ (Rehau/Veka) | |||
| 2-х камерный стеклопакет (3 стекла)** | |||
| Цвет – белый | |||
| Установка водоотливов под окнами | |||
| Двери | |||
| Входная одностворчатая ПВХ с двухкамерным стеклопакетом | |||
| Межэтажная лестница | |||
| Двухмаршевая с точеными балясинами | |||
| Перила | |||
| Ступени готовые | |||
| Оплата | |||
Поэтапная:
|
|||
| Гарантия | |||
| 15 лет* (полное атисептирование каркаса) | |||
| Технический надзор | |||
| на протяжении всей стройки | |||
| Сборка и доставка | |||
| Сборка домокомплекта на участке | |||
| Доставка материала 100 км от МКАД | |||
| Разгрузка материала | |||
| Бытовка для проживания рабочих | |||
| Биотуалет для рабочих | |||
| Провекрка дома АэроОкном | |||
| * обязательным условием для получения гарантии 15 лет - оплата
полного атисептирования каркаса **количество камер стеклопакета, зависит от геометрии и параметров изделий ПВХ ***холодное чердачное помещение |
|||
Каркасный дом Подольск
Возвести недорогой, теплый дом за короткий срок возможно при применении каркасного строительства. Доступность, экономичность сделали этот метод популярным в стране.
Характеристика объекта
Представлен двухэтажный, обшитый вагонкой дом «Подольск», с деревянными окнами и кровлей из оцинкованного железа. Внешние стены – каркас с утеплителем в 100 мм. Внутренняя отделка стен – евровагонка. В интерьере филенчатые двери и междуэтажная лестница.
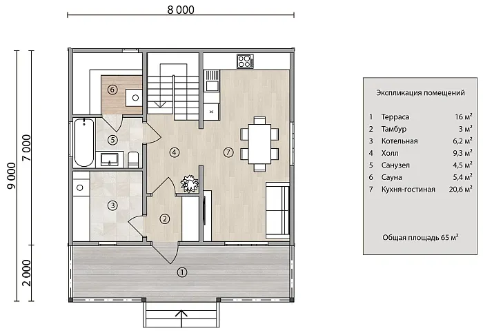
Размеры дома 8х9 м, площадью 127 кв. м, с открытой террасой, балконом по 16 кв. м. Первый уровень:
- сауна;
- котельная;
- санузел;
- кухня;
- холл;
- тамбур.
Площадь первого уровня 65 кв. м.
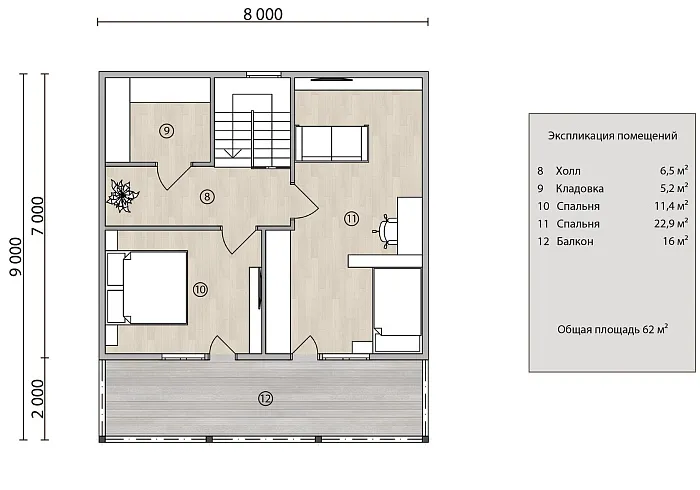
На втором этаже в 62 кв. м, две спальни, кладовка, холл.
Срок строительства объекта – 2 месяца.
О компании СК «Канадская изба»
Входим в пятерку лидеров России по строительству домов, бань вне сезона. Возводим больше, чем 300 объектов в год с пожеланиями заказчика. Принимается наличная, безналичная оплата, материнский капитал. Работаем с кредитом, ипотекой.
Предлагаемые выгоды:
- разработанные технологии;
- штатные строительные бригады;
- цикл работы 2-3 недели;
- цены по прейскуранту;
- материалы и работы соответствуют качеству;
- акции и подарки;
- гарантии до 10 лет.
Необходимую информацию можно уточнить у наших менеджеров.
















