Неаполь
| Общая площадь | 143.6 м² |
| Размер дома | 8.5x11.8 м |
| Этажность | 2 эт |
| Спален | 3 |
| Санузлов | 2 |
| Утепление | 150мм |
| Срок возведения | 2 мес* |
- Комплектация
- Фундамент
|
Комплектация каркасного дома (можно вносить изменения по вашим пожеланиям) |
Внешний контур | Теплый контур | ЗИМА |
|---|---|---|---|
| Цена сейчас | 3 393 000 | 3 967 200 | 5 220 000 |
| Цена в ипотеку с эскроу-счетом | 3 901 950 | 4 562 280 | 6 003 000 |
| Фундамент
в подарок!
|
|||
| Забивные железобетонные сваи 150х150х3000 | |||
| Металлический оголовок, 250*250мм на каждую сваю | |||
| Гидроизоляция между сваей и обвязкой - рубероид | |||
| Цокольное перекрытие | |||
| Нижняя обвязка - Брус 150х150мм | |||
| Лаги пола - доска 50х200мм (камерной сушки) | |||
| Утепление - 200мм (минерало-ватный утеплитель) | |||
| Финишное покрытие - фанера 21мм | |||
| Несущие стены | |||
| Каркас внешних стен - 35х140мм камерной сушки, с шагом 580мм | |||
| Утепление плитное - 150мм (минерало-ватный утеплитель) | |||
| Внешняя отделка - имитация бруса | |||
| Внутренняя отделка - имитация бруса | |||
| Внутренние перегородки | |||
| Каркасные 35х90мм / 35х140мм камерной сушки (по проекту) | |||
| Утепление - 100мм / 150мм* минерало-ватный утеплитель (*по проекту) | |||
| Внутренняя отделка - имитация бруса (стены) | |||
| Высоты | |||
| Высота 1-го этажа - 2,5м | |||
| Высота 2-го этажа - 2,5м | |||
| Кровля | |||
| Стропило 45х190мм камерной сушки | |||
| Утепление - 200мм (минерало-ватный утеплитель) | |||
| Обрешетка - 20х90мм | |||
| Контр-обрешетка - 40х40мм по ветрогидроизоляции | |||
| МЕТАЛЛОЧЕРЕПИЦА 0.5мм (цвет на выбор)
в подарок!
|
|||
| Лестница чердачная DÖCKE / FACRO (при наличии ХЧП)*** |
|||
| Пленки | |||
| ИЗОСПАН AQ PROFF / KNAUF Extra (или аналоги) гидро-ветрозащитная паропроницаемая усиленная мембрана | |||
| ИЗОСПАН RS (или аналоги) / KNAUF Extra армированная паро-гидроизоляция | |||
| Проклейка пленок скотчем | |||
| Ревизионный люк на чердак | |||
| Окна
в подарок!
|
|||
| Оконные конструкции ПВХ (Rehau/Veka) | |||
| 2-х камерный стеклопакет (3 стекла)** | |||
| Цвет – белый | |||
| Установка водоотливов под окнами | |||
| Двери | |||
| Входная одностворчатая ПВХ с двухкамерным стеклопакетом | |||
| Межэтажная лестница | |||
| Двухмаршевая с точеными балясинами | |||
| Перила | |||
| Ступени готовые | |||
| Оплата | |||
Поэтапная:
|
|||
| Гарантия | |||
| 15 лет* (полное атисептирование каркаса) | |||
| Технический надзор | |||
| на протяжении всей стройки | |||
| Сборка и доставка | |||
| Сборка домокомплекта на участке | |||
| Доставка материала 100 км от МКАД | |||
| Разгрузка материала | |||
| Бытовка для проживания рабочих | |||
| Биотуалет для рабочих | |||
| Провекрка дома АэроОкном | |||
| * обязательным условием для получения гарантии 15 лет - оплата
полного атисептирования каркаса **количество камер стеклопакета, зависит от геометрии и параметров изделий ПВХ ***холодное чердачное помещение |
|||
Строительная компания «Канадская изба» представляет каркасный дом «Неаполь». В процессе его проектирования мы старались достичь максимального баланса между комфортной планировкой и качеством самого строения (проекты деревянных коттеджей).
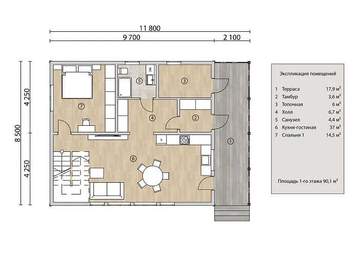
Проект дома
Дом размером 8,5х11,8 м имеет общую площадь 143,6 м2. Вход оформлен через террасу (17,9 м2). После отдельного тамбура межкомнатная дверь ведет в холл (6,7 м2).
На первом этаже располагаются гостиная, совмещенная с кухней, общей площадью 37 м2, также спальня (14,5 м2), один санузел (4,4 м2) и топочная (6 м2).
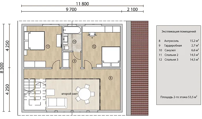
На второй этаж ведет двухмаршевая лестница. Высота второго этажа – 2,2 м. На нем располагаются две спальни по 14,5 м2, гардеробная (2,7 м2), после которой через межкомнатную дверь можно попасть во второй санузел (6,6 м2).
Проектом предусмотрены панорамные окна, обналичка которых оформлена строганными досками.
Преимущества «Канадской избы»
Годом основания «Канадской избы» считается 2004 год. За многолетний опыт работы мы достигли больших успехов. В среднем за год наша компания завершает строительство 300 проектов.
В процессе работы мы гарантируем:
- высокое качество материалов и комплектующих;
- соблюдение сроков возведения (в среднем 2 месяца);
- профессионализм строителей, рабочих;
- гибкие условия оплаты.












