Грац
| Общая площадь | 73 м² |
| Размер дома | 6x8 м |
| Этажность | 2 эт |
| Спален | 1 |
| Санузлов | 1 |
| Утепление | 150мм |
| Срок возведения | 1 мес* |
- Комплектация
- Фундамент
|
Комплектация каркасного дома (можно вносить изменения по вашим пожеланиям) |
Внешний контур | Теплый контур | ЗИМА |
|---|---|---|---|
| Цена сейчас | 2 048 150 | 2 394 760 | 3 151 000 |
| Цена в ипотеку с эскроу-счетом | 2 355 373 | 2 753 974 | 3 623 650 |
| Фундамент
в подарок!
|
|||
| Забивные железобетонные сваи 150х150х3000 | |||
| Металлический оголовок, 250*250мм на каждую сваю | |||
| Гидроизоляция между сваей и обвязкой - рубероид | |||
| Цокольное перекрытие | |||
| Нижняя обвязка - Брус 150х150мм | |||
| Лаги пола - доска 50х200мм (камерной сушки) | |||
| Утепление - 200мм (минерало-ватный утеплитель) | |||
| Финишное покрытие - фанера 21мм | |||
| Несущие стены | |||
| Каркас внешних стен - 35х140мм камерной сушки, с шагом 580мм | |||
| Утепление плитное - 150мм (минерало-ватный утеплитель) | |||
| Внешняя отделка - имитация бруса | |||
| Внутренняя отделка - имитация бруса | |||
| Внутренние перегородки | |||
| Каркасные 35х90мм / 35х140мм камерной сушки (по проекту) | |||
| Утепление - 100мм / 150мм* минерало-ватный утеплитель (*по проекту) | |||
| Внутренняя отделка - имитация бруса (стены) | |||
| Высоты | |||
| Высота 1-го этажа - 2,5м | |||
| Высота 2-го этажа - 2,5м | |||
| Кровля | |||
| Стропило 45х190мм камерной сушки | |||
| Утепление - 200мм (минерало-ватный утеплитель) | |||
| Обрешетка - 20х90мм | |||
| Контр-обрешетка - 40х40мм по ветрогидроизоляции | |||
| МЕТАЛЛОЧЕРЕПИЦА 0.5мм (цвет на выбор)
в подарок!
|
|||
| Лестница чердачная DÖCKE / FACRO (при наличии ХЧП)*** |
|||
| Пленки | |||
| ИЗОСПАН AQ PROFF / KNAUF Extra (или аналоги) гидро-ветрозащитная паропроницаемая усиленная мембрана | |||
| ИЗОСПАН RS (или аналоги) / KNAUF Extra армированная паро-гидроизоляция | |||
| Проклейка пленок скотчем | |||
| Ревизионный люк на чердак | |||
| Окна
в подарок!
|
|||
| Оконные конструкции ПВХ (Rehau/Veka) | |||
| 2-х камерный стеклопакет (3 стекла)** | |||
| Цвет – белый | |||
| Установка водоотливов под окнами | |||
| Двери | |||
| Входная одностворчатая ПВХ с двухкамерным стеклопакетом | |||
| Межэтажная лестница | |||
| Двухмаршевая с точеными балясинами | |||
| Перила | |||
| Ступени готовые | |||
| Оплата | |||
Поэтапная:
|
|||
| Гарантия | |||
| 15 лет* (полное атисептирование каркаса) | |||
| Технический надзор | |||
| на протяжении всей стройки | |||
| Сборка и доставка | |||
| Сборка домокомплекта на участке | |||
| Доставка материала 100 км от МКАД | |||
| Разгрузка материала | |||
| Бытовка для проживания рабочих | |||
| Биотуалет для рабочих | |||
| Провекрка дома АэроОкном | |||
| * обязательным условием для получения гарантии 15 лет - оплата
полного атисептирования каркаса **количество камер стеклопакета, зависит от геометрии и параметров изделий ПВХ ***холодное чердачное помещение |
|||
Каркасный дом «Грац» – частичка Средиземноморья в центре России
Проект «Грац» – это удивительно удачное сочетание средиземноморских традиций в дизайне с требованиями к теплому, комфортному жилью в северных широтах.
Наружная сторона здания выкрашена в белый цвет, что придает зданию внешнюю легкость и напоминает о южных традициях в строительстве. Кровля из оцинкованного профлиста нежного серого цвета добавляет дому ощущение воздушности.
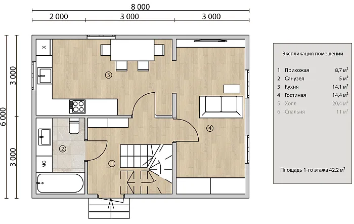
Размер двухэтажного дома «Грац» 6x8 м, полезная площадь – 73 м². Сразу после входа расположена небольшая прихожая, из которой можно попасть в санузел, на просторную кухню площадью 14 м² и в гостиную такого же размера. Последние два помещения имеют отдельные входы, но объединены в одну комнату по принципу Open space.
Лестница на второй мансардный этаж также находится в прихожей. Полезная площадь мансарды – 31 м². На этаже находится просторный холл 20 м² и спальня 11 м².
Теплые, доступные дома для россиян
Компания «Канадская изба» занимается постройкой жилых домов ( из чего построить дачный дом) по каркасной технологии. Все строения рассчитаны на эксплуатацию в средней полосе России. Они хорошо сохраняют тепло в зимнюю стужу.
Мы занимаемся малоэтажным строительством более 12 лет, и можем предложить каждому клиенту:
- скидки или приятные бонусы;
- быстрое строительство здания от 1 месяца;
- недорогое, но очень качественное, комфортное жилье.
Узнавайте у наших менеджеров, какие скидки и бонусы действуют в этом месяце.














