Монца
| Общая площадь | 122.7 м² |
| Размер дома | 10.7x12 м |
| Этажность | 1 эт |
| Спален | 3 |
| Санузлов | 2 |
| Утепление | 150мм |
| Срок возведения | 2 мес* |
- Комплектация
- Фундамент
|
Комплектация каркасного дома (можно вносить изменения по вашим пожеланиям) |
Внешний контур | Теплый контур | ЗИМА |
|---|---|---|---|
| Цена сейчас | 3 246 320 | 4 010 160 | 4 774 000 |
| Цена в ипотеку с эскроу-счетом | 3 733 268 | 4 611 684 | 5 490 100 |
| Фундамент
в подарок!
|
|||
| Забивные железобетонные сваи 150х150х3000 | |||
| Металлический оголовок, 250*250мм на каждую сваю | |||
| Гидроизоляция между сваей и обвязкой - рубероид | |||
| Цокольное перекрытие | |||
| Нижняя обвязка - Брус 150х150мм | |||
| Лаги пола - доска 50х200мм (камерной сушки) | |||
| Утепление - 200мм (минерало-ватный утеплитель) | |||
| Финишное покрытие - фанера 21мм | |||
| Несущие стены | |||
| Каркас внешних стен - 35х140мм камерной сушки, с шагом 580мм | |||
| Утепление плитное - 150мм (минерало-ватный утеплитель) | |||
| Внешняя отделка - Имитация бруса. Крепление на саморезы | |||
| Внутренняя отделка - Имитация бруса. Крепление на саморезы | |||
| Внутренние перегородки | |||
| Каркасные 35х90мм / 35х140мм камерной сушки (по проекту) | |||
| Утепление - 100мм / 150мм* минерало-ватный утеплитель (*по проекту) | |||
| Внутренняя отделка - Имитация бруса (стены). Крепление на саморезы | |||
| Высоты | |||
| Высота 1-го этажа - 2,5м | |||
| Высота 2-го этажа - 2,5м | |||
| Кровля | |||
| Стропило 45х190мм камерной сушки | |||
| Утепление - 200мм (минерало-ватный утеплитель) | |||
| Обрешетка - 20х90мм | |||
| Контр-обрешетка - 40х40мм по ветрогидроизоляции | |||
| МЕТАЛЛОЧЕРЕПИЦА 0.5мм (цвет на выбор)
в подарок!
|
|||
| Лестница чердачная DÖCKE / FACRO (при наличии ХЧП)*** |
|||
| Пленки | |||
| ИЗОСПАН AQ PROFF / KNAUF Extra (или аналоги) гидро-ветрозащитная паропроницаемая усиленная мембрана | |||
| ИЗОСПАН RS (или аналоги) / KNAUF Extra армированная паро-гидроизоляция | |||
| Проклейка пленок скотчем | |||
| Ревизионный люк на чердак | |||
| Окна
в подарок!
|
|||
| Оконные конструкции ПВХ (Rehau/Veka) | |||
| 2-х камерный стеклопакет (3 стекла)** | |||
| Цвет – белый | |||
| Установка водоотливов под окнами | |||
| Двери | |||
| Входная одностворчатая ПВХ с двухкамерным стеклопакетом | |||
| Оплата | |||
Поэтапная:
|
|||
| Гарантия | |||
| 15 лет* (полное атисептирование каркаса) | |||
| Технический надзор | |||
| на протяжении всей стройки | |||
| Сборка и доставка | |||
| Сборка домокомплекта на участке | |||
| Доставка материала | |||
| Разгрузка материала | |||
| Бытовка для проживания рабочих | |||
| Биотуалет для рабочих | |||
| Провекрка дома АэроОкном | |||
| * обязательным условием для получения гарантии 15 лет - оплата
полного атисептирования каркаса **количество камер стеклопакета, зависит от геометрии и параметров изделий ПВХ ***холодное чердачное помещение |
|||
Монца – дом в итальянском стиле для тех, кто любит простор
На создание проекта «Монца» дизайнеров вдохновила итальянская архитектура, в которой сочетаются простор и комфорт. Обязательная черта – большие окна, пропускающие в комнаты много света.
Характеристики и особенности планировки
В дизайне архитекторы руководствовались итальянскими традициями, но дом рассчитан на эксплуатацию в условиях российской зимы. Стены утеплены, кровля наклонная, крепкая, способная выдержать нагрузку снега.
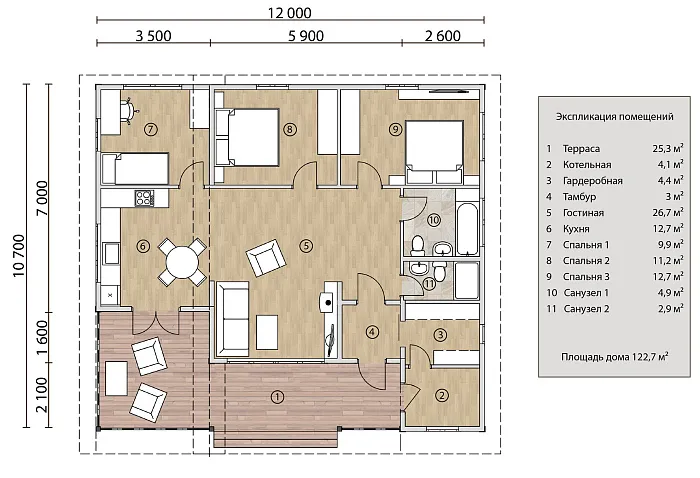
Дом большой и просторный: размер 10.7x12 м, площадь 122.7 м²
Перед входом расположена крытая терраса 25 м², на ней справа отведен уголок для летнего отдыха с входом на кухню. Парадная дверь находится в левой части террасы, за ней тамбур, ведущий в гардеробную и просторную гостиную 26,7 м².
Гостиная служит для отдыха. Через нее можно попасть в другие помещения: на кухню, в санузлы – один с ванной, другой с душевой и две спальни. Вход в третью расположен на кухне.
Лучшие дома для жителей Московской области
Наша компания занимается строительством по современным технологиям, мы предлагаем:
- сберегающие тепло дома;
- быстрое возведение зданий;
- современный дизайн жилья.
Свяжитесь с нашими менеджерами, чтобы узнать о текущих скидках.








