Бари
| Общая площадь | 70 м² |
| Размер дома | 6x9 м |
| Этажность | 2 эт |
| Спален | 1 |
| Санузлов | 1 |
- Комплектация
- Фундамент
|
Комплектация бани (можно вносить изменения по вашим пожеланиям) |
Внешний контур | Теплый контур | ЗИМА |
|---|---|---|---|
| Цена сейчас | 2 371 200 | 2 772 480 | 3 648 000 |
| Цена в ипотеку с эскроу-счетом | 2 726 880 | 3 188 352 | 4 195 200 |
|
Банный комплект Печь с установкой на кирпичную кладку |
|||
| Фундамент
в подарок!
|
|||
| Забивные железобетонные сваи 150х150х3000 | |||
| Металлический оголовок, 250*250мм на каждую сваю | |||
| Гидроизоляция между сваей и обвязкой - рубероид | |||
| Цокольное перекрытие | |||
| Нижняя обвязка - Брус 150х150мм | |||
| Лаги пола - доска 50х200мм (камерной сушки) | |||
| Утепление - 200мм (минерало-ватный утеплитель) | |||
| Финишное покрытие - фанера 21мм | |||
| Несущие стены | |||
| Каркас внешних стен - 35х140мм камерной сушки, с шагом 580мм | |||
| Утепление плитное - 150мм (минерало-ватный утеплитель) | |||
| Внешняя отделка - имитация бруса | |||
| Внутренняя отделка - имитация бруса | |||
| Внутренние перегородки | |||
| Каркасные 35х90мм / 35х140мм камерной сушки (по проекту) | |||
| Утепление - 100мм / 150мм* минерало-ватный утеплитель (*по проекту) | |||
| Внутренняя отделка - имитация бруса (стены) | |||
| Высоты | |||
| Высота 1-го этажа - 2,5м | |||
| Высота 2-го этажа - 2,5м | |||
| Кровля | |||
| Стропило 45х190мм камерной сушки | |||
| Утепление - 200мм (минерало-ватный утеплитель) | |||
| Обрешетка - 20х90мм | |||
| Контр-обрешетка - 40х40мм по ветрогидроизоляции | |||
| МЕТАЛЛОЧЕРЕПИЦА 0.5мм (цвет на выбор)
в подарок!
|
|||
| Лестница чердачная DÖCKE / FACRO (при наличии ХЧП)*** |
|||
| Пленки | |||
| ИЗОСПАН AQ PROFF / KNAUF Extra (или аналоги) гидро-ветрозащитная паропроницаемая усиленная мембрана | |||
| ИЗОСПАН RS (или аналоги) / KNAUF Extra армированная паро-гидроизоляция | |||
| Проклейка пленок скотчем | |||
| Ревизионный люк на чердак | |||
| Окна
в подарок!
|
|||
| Оконные конструкции ПВХ (Rehau/Veka) | |||
| 2-х камерный стеклопакет (3 стекла)** | |||
| Цвет – белый | |||
| Установка водоотливов под окнами | |||
| Двери | |||
| Входная одностворчатая ПВХ с двухкамерным стеклопакетом | |||
| Межэтажная лестница | |||
| Двухмаршевая с точеными балясинами | |||
| Перила | |||
| Ступени готовые | |||
| Оплата | |||
Поэтапная:
|
|||
| Гарантия | |||
| 15 лет* (полное атисептирование каркаса) | |||
| Технический надзор | |||
| на протяжении всей стройки | |||
| Сборка и доставка | |||
| Сборка домокомплекта на участке | |||
| Доставка материала 100 км от МКАД | |||
| Разгрузка материала | |||
| Бытовка для проживания рабочих | |||
| Биотуалет для рабочих | |||
| Провекрка дома АэроОкном | |||
| * обязательным условием для получения гарантии 15 лет - оплата
полного атисептирования каркаса **количество камер стеклопакета, зависит от геометрии и параметров изделий ПВХ ***холодное чердачное помещение |
|||
Каркасный дом «Бари»
Проект «Бари» понравится тем, кто любит лаконичность, четкость линий и комфорт. Этот каркасный утепленный дом (слой утеплителя 100 мм) можно построить даже на небольшом участке. При размерах 6х9 м его общая площадь, благодаря 2 этажам, составляет 70 м2. Он подойдет как дача или для постоянного проживания для 1-2 человек. Цена проекта доступна, а благодаря каркасному методу возведения, такое жилье можно получить всего за 1 месяц.
Усиленный каркас и отделка вагонкой изнутри и снаружи делают его:
- прочным;
- долговечным;
- теплым;
- экологичным (основной материал, который используется при строительстве – древесина).
Характеристики проекта «Бари»
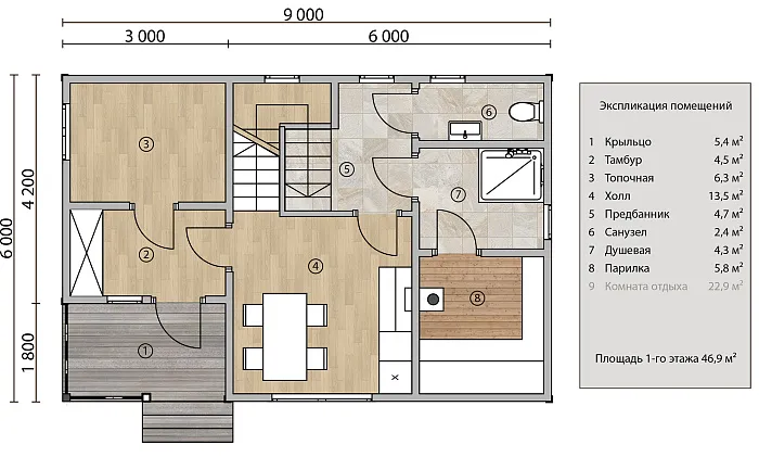
Первый этаж имеет площадь 46,9 м2. С крыльца вход в тамбур, из которого можно попасть в топочное помещение и просторный на 13,5 м2 холл. Этот дом для тех, кто любит отдыхать, заботится о своем здоровье. Ведь на первом этаже, кроме традиционного санузла и душевой кабины, предусмотрена парилка. Она достаточного размера на 5,8 м2.
Весь этот комплекс от холла отгораживает предбанник (баня дом под ключ), поэтому не стоит опасаться, что влажный воздух будет попадать в комнату. Площадь второго этажа составляет 22,9 м2, она полностью отведена под зону отдыха. Здесь можно оборудовать спальню или совместить ее с рабочей зоной. Кроме парилки, еще одна изюминка проекта «Бари» – это второй свет, который наполняет дом воздухом, делает его более «легким».
Заказывайте стройку в «Канадской избе»: строим быстро, надежно, для людей. Выбирайте готовый проект или вносите изменения в дизайн с нашим инженером. По всем вопросам помогут разобраться наши менеджеры, чтобы выбрать выгодный вариант на много лет.










