Баня Аша
| Общая площадь | 66 м² |
| Размер дома | 9,6x7,5 м |
| Этажность | 1 эт |
| Спален | 0 |
| Санузлов | 1 |
- Комплектация
- Фундамент
|
Комплектация бани (можно вносить изменения по вашим пожеланиям) |
Внешний контур | Теплый контур | ЗИМА |
|---|---|---|---|
| Цена сейчас | 1 825 200 | 2 134 080 | 2 808 000 |
| Цена в ипотеку с эскроу-счетом | 2 098 980 | 2 454 192 | 3 229 200 |
|
Банный комплект Печь с установкой на кирпичную кладку |
|||
| Фундамент
в подарок!
|
|||
| Забивные железобетонные сваи 150х150х3000 | |||
| Металлический оголовок, 250*250мм на каждую сваю | |||
| Гидроизоляция между сваей и обвязкой - рубероид | |||
| Цокольное перекрытие | |||
| Нижняя обвязка - Брус 150х150мм | |||
| Лаги пола - доска 50х200мм (камерной сушки) | |||
| Утепление - 200мм (минерало-ватный утеплитель) | |||
| Финишное покрытие - фанера 21мм | |||
| Несущие стены | |||
| Каркас внешних стен - 35х140мм камерной сушки, с шагом 580мм | |||
| Утепление плитное - 150мм (минерало-ватный утеплитель) | |||
| Внешняя отделка - имитация бруса | |||
| Внутренняя отделка - имитация бруса | |||
| Внутренние перегородки | |||
| Каркасные 35х90мм / 35х140мм камерной сушки (по проекту) | |||
| Утепление - 100мм / 150мм* минерало-ватный утеплитель (*по проекту) | |||
| Внутренняя отделка - имитация бруса (стены) | |||
| Высоты | |||
| Высота 1-го этажа - 2,5м | |||
| Высота 2-го этажа - 2,5м | |||
| Кровля | |||
| Стропило 45х190мм камерной сушки | |||
| Утепление - 200мм (минерало-ватный утеплитель) | |||
| Обрешетка - 20х90мм | |||
| Контр-обрешетка - 40х40мм по ветрогидроизоляции | |||
| МЕТАЛЛОЧЕРЕПИЦА 0.5мм (цвет на выбор)
в подарок!
|
|||
| Лестница чердачная DÖCKE / FACRO (при наличии ХЧП)*** |
|||
| Пленки | |||
| ИЗОСПАН AQ PROFF / KNAUF Extra (или аналоги) гидро-ветрозащитная паропроницаемая усиленная мембрана | |||
| ИЗОСПАН RS (или аналоги) / KNAUF Extra армированная паро-гидроизоляция | |||
| Проклейка пленок скотчем | |||
| Ревизионный люк на чердак | |||
| Окна
в подарок!
|
|||
| Оконные конструкции ПВХ (Rehau/Veka) | |||
| 2-х камерный стеклопакет (3 стекла)** | |||
| Цвет – белый | |||
| Установка водоотливов под окнами | |||
| Двери | |||
| Входная одностворчатая ПВХ с двухкамерным стеклопакетом | |||
| Оплата | |||
Поэтапная:
|
|||
| Гарантия | |||
| 15 лет* (полное атисептирование каркаса) | |||
| Технический надзор | |||
| на протяжении всей стройки | |||
| Сборка и доставка | |||
| Сборка домокомплекта на участке | |||
| Доставка материала 100 км от МКАД | |||
| Разгрузка материала | |||
| Бытовка для проживания рабочих | |||
| Биотуалет для рабочих | |||
| Провекрка дома АэроОкном | |||
| * обязательным условием для получения гарантии 15 лет - оплата
полного атисептирования каркаса **количество камер стеклопакета, зависит от геометрии и параметров изделий ПВХ ***холодное чердачное помещение |
|||
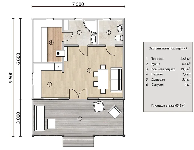
Каркасный дом баня Аша
Компания «Канадская изба» предлагает выгодно заказать проект каркасного дома-бани размерами 9,6x7,5 метров и общей площадью в 66 м2. Коттедж возводится в течение 1 месяца, причем с полным соблюдением регламентных требований и норм, изложенных в СНиПе.
Особенности планировки и фасада
Одноэтажное строение включает в себя кухню, комнату отдыха, душевую, санузел и парную, поэтому здесь имеется все необходимое для комплексного отдыха. Крытая терраса отличается большой площадью, поэтому позволяет легко разместить здесь стол, стулья и кушетки для отдыха. Планировка отличается удобством и продуманностью.
Чистовой пол выполнен из строганной шпунтованной доски, толщиной в 28 мм. Внутренняя и внешняя отделка представлена влагоустойчивой вагонкой, обработанной дополнительными составами против возгорания. Нижняя обвязка выполнена обрезным брусом 100х150 мм.
Выгодные условия сотрудничества
Все мастера нашей организации – квалифицированные специалисты, обладающие опытом и практическими навыками, умениями, знаниями. Обращаясь к нам, вы получаете:
- возможность заказать строительство по доступной цене;
- гарантию качества выполняемой работы;
- неукоснительное соблюдение сроков сдачи объекта.
На все работы предоставляется письменная гарантия качества. Ждем ваших заявок по телефону 8 (495) 966-41-46!








