Вельс
| Общая площадь | 181 м² |
| Размер дома | 9x15 м |
| Этажность | 2 эт |
| Спален | 4 |
| Санузлов | 2 |
| Утепление | 150мм |
| Срок возведения | 3 мес* |
- Комплектация
- Фундамент
|
Комплектация каркасного дома (можно вносить изменения по вашим пожеланиям) |
Внешний контур | Теплый контур | ЗИМА |
|---|---|---|---|
| Цена сейчас | 4 036 500 | 4 719 600 | 6 210 000 |
| Цена в ипотеку с эскроу-счетом | 4 641 975 | 5 427 540 | 7 141 500 |
| Фундамент
в подарок!
|
|||
| Забивные железобетонные сваи 150х150х3000 | |||
| Металлический оголовок, 250*250мм на каждую сваю | |||
| Гидроизоляция между сваей и обвязкой - рубероид | |||
| Цокольное перекрытие | |||
| Нижняя обвязка - Брус 150х150мм | |||
| Лаги пола - доска 50х200мм (камерной сушки) | |||
| Утепление - 200мм (минерало-ватный утеплитель) | |||
| Финишное покрытие - фанера 21мм | |||
| Несущие стены | |||
| Каркас внешних стен - 35х140мм камерной сушки, с шагом 580мм | |||
| Утепление плитное - 150мм (минерало-ватный утеплитель) | |||
| Внешняя отделка - имитация бруса | |||
| Внутренняя отделка - имитация бруса | |||
| Внутренние перегородки | |||
| Каркасные 35х90мм / 35х140мм камерной сушки (по проекту) | |||
| Утепление - 100мм / 150мм* минерало-ватный утеплитель (*по проекту) | |||
| Внутренняя отделка - имитация бруса (стены) | |||
| Высоты | |||
| Высота 1-го этажа - 2,5м | |||
| Высота 2-го этажа - 2,5м | |||
| Кровля | |||
| Стропило 45х190мм камерной сушки | |||
| Утепление - 200мм (минерало-ватный утеплитель) | |||
| Обрешетка - 20х90мм | |||
| Контр-обрешетка - 40х40мм по ветрогидроизоляции | |||
| МЕТАЛЛОЧЕРЕПИЦА 0.5мм (цвет на выбор)
в подарок!
|
|||
| Лестница чердачная DÖCKE / FACRO (при наличии ХЧП)*** |
|||
| Пленки | |||
| ИЗОСПАН AQ PROFF / KNAUF Extra (или аналоги) гидро-ветрозащитная паропроницаемая усиленная мембрана | |||
| ИЗОСПАН RS (или аналоги) / KNAUF Extra армированная паро-гидроизоляция | |||
| Проклейка пленок скотчем | |||
| Ревизионный люк на чердак | |||
| Окна
в подарок!
|
|||
| Оконные конструкции ПВХ (Rehau/Veka) | |||
| 2-х камерный стеклопакет (3 стекла)** | |||
| Цвет – белый | |||
| Установка водоотливов под окнами | |||
| Двери | |||
| Входная одностворчатая ПВХ с двухкамерным стеклопакетом | |||
| Межэтажная лестница | |||
| Двухмаршевая с точеными балясинами | |||
| Перила | |||
| Ступени готовые | |||
| Оплата | |||
Поэтапная:
|
|||
| Гарантия | |||
| 15 лет* (полное атисептирование каркаса) | |||
| Технический надзор | |||
| на протяжении всей стройки | |||
| Сборка и доставка | |||
| Сборка домокомплекта на участке | |||
| Доставка материала 100 км от МКАД | |||
| Разгрузка материала | |||
| Бытовка для проживания рабочих | |||
| Биотуалет для рабочих | |||
| Провекрка дома АэроОкном | |||
| * обязательным условием для получения гарантии 15 лет - оплата
полного атисептирования каркаса **количество камер стеклопакета, зависит от геометрии и параметров изделий ПВХ ***холодное чердачное помещение |
|||
Каркасный дом Вельс
Проект «Вельс» – это просторный (на 181 м2) двухэтажный дом. Он подойдет как дача, так и круглогодичного проживания, поскольку построен по каркасной технологии с утеплением в 100 м. Вы можете получить такой дом всего за 3 месяца с момента оформления заявки. Оригинальный внешний вид с отделкой вагонкой и большими окнами делают дом красивым, светлым.
Особенности проекта «Вельс»
Дом достаточно компактный (9х15 м). Он дополнен красивой террасой. Первый этаж более просторный на 111 м2 с потолками высотой 2,4 м. Здесь располагается просторный холл на 15 м2, большая кухня-гостиная на 41,5 м2, где можно поставить обеденный стол и принимать гостей.
Также на первом этаже находится одна из спален, дополнительные помещения:
- гардеробная;
- топочная;
- санузел.
Для защиты от холодного воздуха на входе с крыльца предусмотрен тамбур.
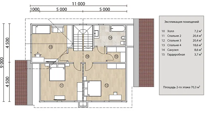
Второй этаж, на который ведет деревянная лестница, отведен под жилые комнаты. Кроме 3 спален (разной площади), здесь располагается холл, отдельный санузел и гардеробная. Такой дом – оптимальное решение для постоянного проживания большой семьи.
«Канадская изба» построит надежный дом для вашей семьи (дом из сип панелей), в котором можно отдыхать летом с друзьями или даже жить круглогодично благодаря конструкции, устойчивой к трудным погодным условиям.














