Радуга
| Общая площадь | 70 м² |
| Размер дома | 6x8 м |
| Этажность | 2 эт |
| Спален | 1 |
| Санузлов | 1 |
| Утепление | 150мм |
| Срок возведения | 1 мес* |
- Комплектация
- Фундамент
|
Комплектация каркасного дома (можно вносить изменения по вашим пожеланиям) |
Внешний контур | Теплый контур | ЗИМА |
|---|---|---|---|
| Цена сейчас | 2 139 150 | 2 632 800 | 3 291 000 |
| Цена в ипотеку с эскроу-счетом | 2 460 023 | 3 027 720 | 3 784 650 |
| Фундамент
в подарок!
|
|||
| Забивные железобетонные сваи 150х150х3000 | |||
| Металлический оголовок, 250*250мм на каждую сваю | |||
| Гидроизоляция между сваей и обвязкой - рубероид | |||
| Цокольное перекрытие | |||
| Нижняя обвязка - Брус 150х150мм | |||
| Лаги пола - доска 50х200мм (камерной сушки) | |||
| Утепление - 200мм (минерало-ватный утеплитель) | |||
| Финишное покрытие - фанера 21мм | |||
| Несущие стены | |||
| Каркас внешних стен - 35х140мм камерной сушки, с шагом 580мм | |||
| Утепление плитное - 150мм (минерало-ватный утеплитель) | |||
| Внешняя отделка - Имитация бруса. Крепление на саморезы | |||
| Внутренняя отделка - Имитация бруса. Крепление на саморезы | |||
| Внутренние перегородки | |||
| Каркасные 35х90мм / 35х140мм камерной сушки (по проекту) | |||
| Утепление - 100мм / 150мм* минерало-ватный утеплитель (*по проекту) | |||
| Внутренняя отделка - Имитация бруса (стены). Крепление на саморезы | |||
| Высоты | |||
| Высота 1-го этажа - 2,5м | |||
| Высота 2-го этажа - 2,5м | |||
| Кровля | |||
| Стропило 45х190мм камерной сушки | |||
| Утепление - 200мм (минерало-ватный утеплитель) | |||
| Обрешетка - 20х90мм | |||
| Контр-обрешетка - 40х40мм по ветрогидроизоляции | |||
| МЕТАЛЛОЧЕРЕПИЦА 0.5мм (цвет на выбор)
в подарок!
|
|||
| Лестница чердачная DÖCKE / FACRO (при наличии ХЧП)*** |
|||
| Пленки | |||
| ИЗОСПАН AQ PROFF / KNAUF Extra (или аналоги) гидро-ветрозащитная паропроницаемая усиленная мембрана | |||
| ИЗОСПАН RS (или аналоги) / KNAUF Extra армированная паро-гидроизоляция | |||
| Проклейка пленок скотчем | |||
| Ревизионный люк на чердак | |||
| Окна
в подарок!
|
|||
| Оконные конструкции ПВХ (Rehau/Veka) | |||
| 2-х камерный стеклопакет (3 стекла)** | |||
| Цвет – белый | |||
| Установка водоотливов под окнами | |||
| Двери | |||
| Входная одностворчатая ПВХ с двухкамерным стеклопакетом | |||
| Межэтажная лестница | |||
| Двухмаршевая с точеными балясинами | |||
| Перила | |||
| Ступени готовые | |||
| Оплата | |||
Поэтапная:
|
|||
| Гарантия | |||
| 15 лет* (полное атисептирование каркаса) | |||
| Технический надзор | |||
| на протяжении всей стройки | |||
| Сборка и доставка | |||
| Сборка домокомплекта на участке | |||
| Доставка материала | |||
| Разгрузка материала | |||
| Бытовка для проживания рабочих | |||
| Биотуалет для рабочих | |||
| Провекрка дома АэроОкном | |||
| * обязательным условием для получения гарантии 15 лет - оплата
полного атисептирования каркаса **количество камер стеклопакета, зависит от геометрии и параметров изделий ПВХ ***холодное чердачное помещение |
|||
Практичные и экономичные двухэтажные коттеджи из бруса, возведенные по проекту «Радуга», подойдут для ценителей натуральных оттенков, классического силуэта, деревянного крыльца с резными перилами и ступеньками. Разумная планировка помогает распределить 78 м² общей площади, создав комфортную среду обитания для всех жителей.
Внешний вид и внутреннее убранство
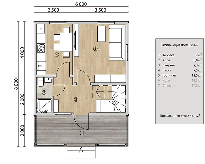
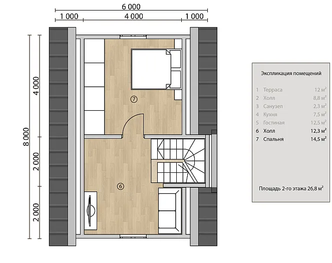
Размеры небольшого, но удобного дома «Радуга» составляют 6x8 м. Площадь первого этажа – 48 м², второго – 30 м² (в зависимости от материала стен и отделки могут быть незначительные расхождения по сравнению с проектными величинами).
В дом можно попасть с большой светлой террасы, которая одновременно служит крыльцом. Первым делом посетитель видит прямоугольную прихожую (12 м²), из которой проходит в кухню (10 м²), гостиную (14 м²) или по лестнице подняться на второй этаж, на котором расположены две спальни 12 и 16 м².
Дом возведен из:
- обрезного бруса 100х150 и 50х150мм;
- профилированного бруса 90х135мм;
- первый этаж утеплен льноджутовым волокном.
Есть множество дополнительных решений, с помощью которых можно дополнительно улучшить не только внутреннее убранство, но и технические характеристики здания.
Наши преимущества
Дома из бруса возводят очень быстро, в течение месяца. Однако нужно учесть многие нюансы и выполнять работу точно по стандарту. Квалификация монтажников не менее важна, чем качество сборных материалов. Компания «Канадская изба» работает только с собственными бригадами строителей, не привлекая подрядчиков, поэтому дает гарантию на монтаж 10 лет.












