Борг 9
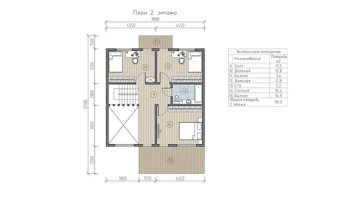
| Общая площадь | 178 м² | 
| Размер дома | 12.7x9 м | 
| Этажность | 2 эт | 
| Спален | 4 | 
| Санузлов | 2 | 
| Утепление | 150мм | 
| Срок возведения | 3 мес* | 
Перепланировка БЕСПЛАТНО при заключении договора на строительство
        Строительство ведётся под наблюдением технического надзора
    - Комплектация
- Фундамент
| Комплектация каркасного дома (можно вносить изменения по вашим пожеланиям) | Внешний контур | Теплый контур | ЗИМА + | 
|---|---|---|---|
| Цена сейчас | 4 061 850 | 4 749 240 | 6 249 000 | 
| Цена в ипотеку с эскроу-счетом | 4 264 943 | 4 986 702 | 6 561 450 | 
| Фундамент в подарок! | |||
| Забивные железобетонные сваи 150х150х3000 | |||
| Металлический оголовок, 250*250мм на каждую сваю | |||
| Гидроизоляция между сваей и обвязкой - рубероид | |||
| Цокольное перекрытие | |||
| Нижняя обвязка - Брус 150х150мм | |||
| Лаги пола - доска 50х200мм (камерной сушки) | |||
| Утепление - 200мм (минерало-ватный утеплитель) | |||
| Финишное покрытие - фанера 21мм | |||
| Несущие стены | |||
| Каркас внешних стен - 35х140мм камерной сушки, с шагом 580мм | |||
| Утепление плитное - 150мм (минерало-ватный утеплитель) | |||
| Внешняя отделка - имитация бруса | |||
| Внутренняя отделка - имитация бруса | |||
| Внутренние перегородки | |||
| Каркасные 35х90мм / 35х140мм камерной сушки (по проекту) | |||
| Утепление - 100мм / 150мм* минерало-ватный утеплитель (*по проекту) | |||
| Внутренняя отделка - имитация бруса (стены) | |||
| Высоты | |||
| Высота 1-го этажа - 3м | |||
| Высота 2-го этажа - 3м | |||
| Высота аттиковой стены - 2м | |||
| Кровля | |||
| Стропило 45х190мм камерной сушки | |||
| Утепление - 200мм (минерало-ватный утеплитель) | |||
| Обрешетка - 20х90мм | |||
| Контр-обрешетка - 40х40мм по ветрогидроизоляции | |||
| МЕТАЛЛОЧЕРЕПИЦА 0.5мм (цвет на выбор) в подарок! | |||
| Выносы - 50см | |||
| Пленки | |||
| ИЗОСПАН AQ PROFF / KNAUF Extra (или аналоги) гидро-ветрозащитная паропроницаемая усиленная мембрана | |||
| ИЗОСПАН RS (или аналоги) / KNAUF Extra армированная паро-гидроизоляция | |||
| Проклейка пленок скотчем | |||
| Ревизионный люк на чердак | |||
| Окна в подарок! | |||
| Оконные конструкции ПВХ (Rehau/Veka) | |||
| 2-х камерный стеклопакет (3 стекла)** | |||
| Цвет – белый | |||
| Установка водоотливов под окнами | |||
| Двери | |||
| Входная одностворчатая ПВХ с двухкамерным стеклопакетом | |||
| Межэтажная лестница | |||
| Двухмаршевая с точеными балясинами | |||
| Перила | |||
| Ступени готовые | |||
| Оплата | |||
| Поэтапная: 
 | |||
| Гарантия | |||
| 15 лет* (полное атисептирование каркаса) | |||
| Технический надзор | |||
| на протяжении всей стройки | |||
| Сборка и доставка | |||
| Сборка домокомплекта на участке | |||
| Доставка материала 100 км от МКАД | |||
| Разгрузка материала | |||
| Бытовка для проживания рабочих | |||
| Биотуалет для рабочих | |||
| Провекрка дома АэроОкном | |||
| * обязательным условием для получения гарантии 15 лет - оплата
                                        полного атисептирования каркаса **количество камер стеклопакета, зависит от геометрии и параметров изделий ПВХ | |||
Похожие дома
Смотреть всеЭтапы работы
1
                    Помогаем выбрать дом
                    Технология, проект, строительство
                2
                    Заключаем договор
                    И составляем график платежей
                3
                    Строим дом
                    С контролем качества работ и материалов
                4
                    Передаем вам ключи
                    От нового дома
                
















 
                                     
                                     
                                    