Лесной
| Общая площадь | 125.7 м² |
| Размер дома | 14.6x11 м |
| Этажность | 1 эт |
| Спален | 2 |
| Санузлов | 1 |
- Комплектация
- Фундамент
| Проектная документация |
|
| Стеновой комплект |
|
| Кровля |
|
| Доставка до Вашего участка | |
| Монтаж-сборка квалифицированной бригадой | |
| Гарантия от производителя | |
| Поэтапная оплата. Возможность льготного кредитования. | |
Проект дома «Лесной»
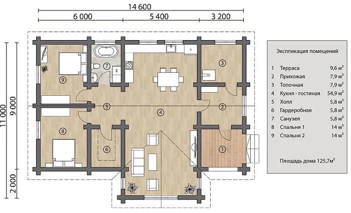
Компания «Канадская изба» предлагает вашему вниманию проект дома (финский каркасный дом) «Лесной» общей площадью 125,7 квадратных метров. В процессе разработки архитекторы делали упор на экологичность, компактность и применение современных технологических решений.
Интерьер
Перегородки, несущие стены и фронтоны изготовлены из соснового оцилиндрованного бревна. По умолчанию его диаметр составляет 200 миллиметров, но по отдельному заказу можно выбрать сырье увеличенного диаметра.
Чтобы внутри помещений всегда было тепло, между венцами утрамбовывается уплотнитель в виде льноджутового полотна. Наиболее просторной является кухня с гостиной (54,9 м2) – она занимает почти половину площади. Отсюда реализован выход практически в любое помещение – прихожую, холл, террасу (9,6 м2), 2 спальни по 14 м2 и так далее.
Для сборки дома уже присутствует полный комплект сопутствующих и расходных материалов. Кровля создана на базе стропильной системы со скользящими опорами.
Фундамент
На выбор есть три варианта фундамента – ленточный, монолитный или свайный. Какой выбрать фундамент – ответ во многом зависит от диаметра оцилиндрованного бревна и характеристик почвы, ее уровня стабильности.














