ОЦБ 4
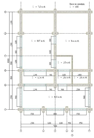
| Общая площадь | 149.75 м² |
| Размер дома | 7x10 м |
| Этажность | 2 эт |
| Спален | |
| Санузлов |
- Комплектация
- Фундамент
| Проектная документация |
|
| Стеновой комплект |
|
| Кровля |
|
| Доставка до Вашего участка | |
| Монтаж-сборка квалифицированной бригадой | |
| Гарантия от производителя | |
| Поэтапная оплата. Возможность льготного кредитования. | |
Дом из оцилиндрованного бревна ОЦБ 4
Коттедж ОЦБ 4 – это пример дома из натурального оцилиндрованного бревна, которое при размерах 7х10 метров имеет внутреннюю площадь в 149,7 м2. Компании «Канадская изба» занимается строительством таких коттеджей, гарантируя качество и соответствие нормам СНиПа.
Особенности дома ОЦБ-4
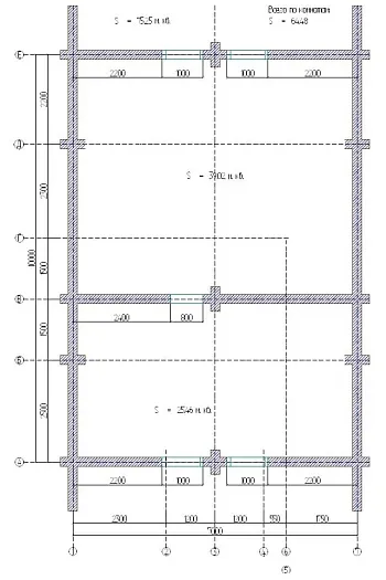
Примечательно, что коттедж имеет мансардный этаж, где располагается 2 спальни, что позволяет свободно размещаться в нем 4-5 людям или семье с детьми. Свайный фундамент формируется в течение всего нескольких дней, после чего мастера могут приступать к сборке дома. Диаметра бревна в 200 мм вполне достаточно для обеспечения теплоизоляционных свойств.
Коттедж (строительство одноэтажных домов) ОЦБ-4 подходит для отдыха за городом или летнего проживания всей семьей. Красивая архитектура делает его привлекательным в глазах окружающих. Льноджутовое волокно обеспечивает эффективную теплоизоляцию. В качестве пиломатериала используются бревна из сосны или ели, обладающие высокими экологическими свойствами.
Выгодные условия сотрудничества
Обращаясь в нашу фирму, вы можете надеяться на постройку дома ОЦБ-4 в течение всего 1-1,5 месяцев, что позволяет возвести его в течение одного сезона. К преимуществам нашей компании можно отнести следующее:
- адекватные расценки;
- оказание услуг на основании договора;
- использование только сертифицированных материалов.
Получить дополнительную информацию, а также ответы на интересующие вопросы можно по телефону 8 (495) 966-41-46 в удобное для вас время!














