Альберта
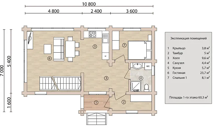
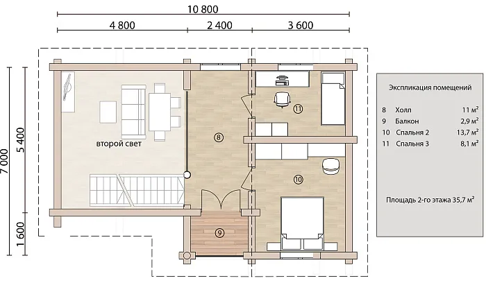
| Общая площадь | 96 м² |
| Размер дома | 10.8x7 м |
| Этажность | 2 эт |
| Спален | 3 |
| Санузлов | 1 |
Перепланировка БЕСПЛАТНО при заключении договора на строительство
Строительство ведётся под наблюдением технического надзора
- Комплектация
- Фундамент
Базовая комплектация
936 878
| Проектная документация |
|
| Стеновой комплект |
|
| Кровля |
|
| Доставка до Вашего участка | |
| Монтаж-сборка квалифицированной бригадой | |
| Гарантия от производителя | |
| Поэтапная оплата. Возможность льготного кредитования. | |
Похожие дома
Смотреть всеЭтапы работы
1
Помогаем выбрать дом
Технология, проект, строительство
2
Заключаем договор
И составляем график платежей
3
Строим дом
С контролем качества работ и материалов
4
Передаем вам ключи
От нового дома














